MENU
ホーム
会社概要
スタッフ紹介
ビルオーナー様へ
お問い合わせ
千葉県内全域のオフィス、空き店舗テナント情報をご紹介
ホーム
会社概要
スタッフ紹介
ビルオーナー様へ
お問い合わせ
ホーム
会社概要
スタッフ紹介
ビルオーナー様へ
お問い合わせ
トップページ
投稿
常磐線
南柏
南柏
の賃貸オフィス、店舗一覧
4 件の物件が見つかりました
オフィス
店舗
駅近
居抜き店舗
物販
美容室・理容室
クリニック
エステ・マッサージ
新耐震
フィールズ南柏
南柏中央6-7
S造地下1階地上6階
JR 常磐線 『 南柏 』駅
階数
面積
敷金
賃料
共益費
入居時期
図面
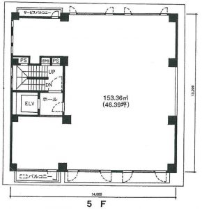
202(店舗)
113.031坪
賃料の10ヶ月分
1,695,465円/月
(@15,000円/坪)
賃料に含む
即入居可
新耐震
南柏プラザビル
南柏1-2-7
S造 地上8階建
JR 常磐線 『 南柏 』駅
階数
面積
敷金
賃料
共益費
入居時期
図面
2
約121.4坪
(スケルトン渡しになります。)
賃料6ヶ月分
500,000円/月
(@約4,118円/坪)
無し
相談
新耐震
南柏綾水ビル
南柏中央1-5
鉄筋コンクリート造 地上5階建
JR 常磐線 『 南柏 』駅
階数
面積
敷金
賃料
共益費
入居時期
図面
満室
新耐震
サポーレ南柏
南柏1-7-6
RC造 地上8階・地下1階建
JR 常磐線 『 南柏 』駅
階数
面積
敷金
賃料
共益費
入居時期
図面
満室
1
メニュー
ホーム
会社概要
スタッフ一覧
閉じる